DOVER KENT ARCHIVES

Page Updated:- Monday, 03 November, 2025.

PUB LIST PUBLIC HOUSES Paul Skelton

Earliest 1841-

Black Horse

Closed Oct 2024

Tumblefield Road

Stansted

01732 822355

http://www.theblackhorsestansted.co.uk/

https://whatpub.com/black-horse

Black Horse

Above postcard, circa 1919, kindly sent by Rory Kehoe. In addition to providing refreshments, the pub offered Royal Daylight Oil (used in lamps, heaters and cookers) and welcomed ACU (Auto Cycle Union) members on their motorbikes. The pub was evidently a tied house, within the estate of Frederick Leney's Phoenix Brewery, Wateringbury,

Black Horse

Above postcard, date unknown. Showing pub centre distant.

Black Horse 2010

Above photo 2008 by Stephen Craven Creative Commons Licence.

Black Horse sign 2014

Above sign 2014, taken by Adam Swain from Flickr.

 

Project 2014 has been started to try and identify all the pubs that are and have ever been open in Kent. I have just added this pub to that list but your help is definitely needed regarding it's history.

As the information is found or sent to me, including photographs, it will be shown here.

Thanks for your co-operation.

 

From the West Kent Guardian, 21 April 1849.

On Friday evening, the 13th inst., the wife of Mr. James Fremlin, landlord of the "Black Horse" public house, Stansted, near Wrotham, in this County, gave birth to three fine children's; two girls and a boy. The mother and children are doing well.

 

Kentish Gazette, 24 April 1849.

On Saturday morning the wife of Mr. James Fremlin, of the "Black Horse," Stanstead, near Wrotham, was confined with three fine full-grown children, two girls and one boy, who, together with their mother, are doing well.

 

From the https://www.newsshopper.co.uk By PubSpy, 10th October 2012.

PUBSPY'S VIEW.

THIS week I found myself well and truly off the beaten track.

Black Horse 2012

Venturing into the darkest recesses of the Kent countryside, I stumbled, quite by accident, across The Black Horse at Stansted.

There can’t be many pubs more tucked away than this one.

Being Saturday evening - and me starving as usual - my first concern was whether food was being served.

When I was told it was, I realised my pangs of hunger had taken my full attention and I’d barely noticed the newly plastered walls and ceiling, not to mention dangling electrical fittings.

Realising I wasn’t a local, and perhaps sensing my next question, the landlady was quick to tell me they were still open but undergoing a refurbishment and did we mind a ‘slightly disorganised look’?

I spotted Larkins Traditional at £2.80 a pint and rapidly decided I could live with the undecorated appearance.

And I’ll say up front right now, how glad I was I took this decision.

Serving food between 6pm and 9pm on a Saturday evening, my dining pals and I chose three different items from the select but more than adequate menu.

The pan-fried pork chops I went for were excellent (£10.95) with roasted potatoes and roasted vegetables.

Likewise, the cod and chips at £9.95 were declared a great success.

However, both were overshadowed by quite simply the best burger ever served in any pub or restaurant.

Yes, at £9.50 the price isn’t the cheapest, but the Black Horse Burger is, and this was agreed by all three of us, the best you will ever taste.

So, let’s sum up so far - the Larkins at 3.4 per cent isn’t the strongest beer you’ll find, but it’s a damn fine pint.

The food is quite fantastic, but the pub is currently undergoing a facelift.

The welcome is as warm and friendly as you’ll find and our hostess informed me she and her husband had only had the pub for 12 weeks – what’s more it is their first venture into the trade – hence the place is being upgraded.

By this stage we were sharing pleasantries with a number of people at the bar and on the recommendation of one, I followed my pork chop with the Eton mess – another good decision.

Everyone was friendly, I particularly enjoyed being nuzzled by the cold nose of Willow – who I hasten to add was the most affectionate Weimaraner you could ever wish to meet.

We’d only been in the pub an hour but Phil, with shoulder-length white hair, already felt he knew us well enough to wish us an effusive good night as he left.

To conclude, I just want to say I desperately hope the ongoing refurbishment will not add any TV screens, fruit machines, juke boxes or other superfluous electricals.

This is, and must remain, a well-kept rural secret where the locals welcome all-comers, in particular the friendly four-legged variety.

I was so taken with the Black Horse I promised myself I would return very soon to try the Sunday lunch, read the papers and, perhaps, just perhaps, take a proper country walk.

Decor * (a work in progress)

Drink **** (go for Larkins)

Price *** (good value)

Food ***** (best burger ever)

Atmosphere **** (totally relaxed)

Staff ***** (you won’t meet nicer people)

 

From the https://www.kentonline.co.uk By Rebecca Tuffin, 24 August 2019.

13 Kent pub gardens to visit this summer bank holiday weekend.

With this bank holiday weekend set to one of hottest yet, many will be longing for an ice-cold pint in a sunny beer garden.

So we have found some of the best Kent has to offer.

Listed below are 13 of the county's finest spots to meet with friends and indulge in good food and drink.

The Black Horse.

Black Horse garden 2019

The Black Horse garden.

The Black Horse's pub garden, complete with brightly-coloured flowers and purple parasols, this is a perfect bank holiday destination.

Recently renovated, the venue offers a range of pub classics and four-legged friends are welcome.

Locally-brewed Larkin’s is on tap, alongside regular guest ales at the hostelry.

 

Sadly closed in October 2024, but the local community are trying to raise the funds to buy the freehold.

 

From the https://www.kentonline.co.uk By Cara Simmonds, 24 July 2025.

Villagers launch campaign to save The Black Horse in Tumblefield Road, Stansted.

Residents are campaigning to buy and preserve the history of a much-loved pub, which is now the “last one standing”.

The Black Horse in Tumblefield Road, Stansted, was once a thriving village boozer but has been closed for more than nine months.

Black Horse event 2025

A "pop-up pub" night with villagers from Stansted, who want to save The Black Horse. Picture: Anna Epps.

Resident Tom Sheldon says his parents moved to the village in 1954.

“When you've got the privilege of living in this area, you realise the value of community,” the 72-year-old explained.

“You lose the village shop, then the pub and perhaps the school – it's like you are ripping the heart out of it.

“It's happening all over the place, isn't it? I think this is why we feel so passionate about it."

The two-acre site is understood to have been a pub from 1833 and was once owned by the Fremlin family, who later became the Maidstone brewers.

Black Horse 2025

The establishment in Tumblefield Road has been shut since October.

It was said to have been a fairly successful business; however, following Covid and the ongoing cost-of-living crisis, the building closed to the public in October last year.

At one stage, it had B&B rooms on the second floor, as well as a manager’s annexe. On the ground floor was a small restaurant that seated around 30 to 40 covers.

Anna Epps lives along from the pub and has been a part of the village for the last 13 years.

The 41-year-old said: “I think the shared feeling was sadness, that there isn't that hub or community anymore.

“We've got the village hall, but it’s not open all the time. The pub is a place where people can congregate. We've lost it and there hasn't been a replacement.”

Tom Sheldon and Anna Epps 2025

Tom Sheldon and Anna Epps are part of the Stansted and Fairseat Community Group.

Four other remaining drinking spots in the area – including the "Vigo Inn," "Horse & Groom," "Anchor & Hope" and The "Green Man" – have also closed down. Plans have been approved to replace the latter with a new pub following it’s destruction in a blaze back in 2021.

Tom believes The Black Horse is the “last one standing”.

Both residents make up the Stansted and Fairseat Community Group (SFCG), a committee of ten members aiming to become a Community Benefit Society (CBS).

It is a type of not-for-profit business model that is registered with the Financial Conduct Authority. You can apply for grants to buy a local asset and allow people to own a share.

The "Harrow" at Stockbury is a successful example of a community-run pub.

Residents first got together in 2016, when Shepherd Neame announced it wanted to dispose of the site, with the likelihood it would be turned into housing.

The village formed a CBS and sold shares to raise enough money, with the help of a small mortgage, to buy the pub from the brewers.

In November, the Stansted Parish Council held a public meeting and was seeking volunteers who would be willing to save the establishment.

Since then, they have met monthly to discuss what steps they should take. At a recent “pop-up pub” event, more than 150 people attended.

An additional 100 signs and banners have been put up across Stansted and the surrounding villages – aiming to send a clear message to any potential developers.

Black Horse protest sign 2025

Campaign signs have been put up outside homes to try and deter developers.

Anna added: “We want to actively campaign to protect The Black Horse as a fully functioning food-led pub.

“This would allow us to keep the landmarks in our village for the next generation. I think that's really important.”

In the daytime, they would want it to become a café – offering coffee, tea and refreshments to walkers and cyclists who use the footpaths and cycling routes.

It will also be a social hub and would be home to several clubs and societies if needed.

Tom, a retired charter surveyor, admitted running a pub “isn’t for the faint-hearted”.

Owners of the pub say the venue hasn’t been profitable “for some time”, with rising energy bills and staff wages to blame. However, they are open to offers from the community.

Anna believes her team have done their research and have pulled a business plan together.

“As a CBS, we're not in it to make loads of money,” she explained. “That takes the pressure off a bit.

“We just need to break even – a small profit each year that we can reinvest back into the building.

“We're very confident that we could run it in that way. Of course it's hard. Even running a profitable pub as a private individual is tough. You need a good reputation.”

In January, the group managed to secure Asset of Community Value (ACV) status for both the pub and the surrounding land.

This means residents will be informed if it goes on the market within a five-year listing period.

They can then enact the “community right to bid”, which gives them six months to determine if they can raise funds to purchase the asset.

The pub is currently owned by Danny Jarvis and Victoria Collier, with the committee reiterating that they’d like to maintain an “open and constructive dialogue” with them.

The group is aiming to buy the pub through the set-up of a Community Benefit Society.

“The owner does not have to sell to us, but we would love them to,” Anna said.

“We've been communicating back and forth. We have put an offer in for the pub that has been rejected.

“We're seeking to pay a fair price for the freehold in line with its market value."

According to The Move Market, the site sold in 2022 for £495,000, with the average price of a property along the road being £702,000.

Tom Tugendhat (Con), MP for Tonbridge, said: “Villages like Stansted need a thriving pub at its heart, which The Black Horse has been for many decades. I am incredibly sad it is no longer operating as a pub, and urge the owners to engage with the community over its long-term future.

“I look forward to continuing to work with the village to help save such an important pub.”

Owner Victoria told KentOnline they sadly had to close due to “financial difficulties”.

She said: “I bought it in 2022 after selling my family home, relocating my family to Stansted with the hope of creating a sustainable business and building a future here for my children.

“Unfortunately, the pub hadn’t been profitable for some time, but I put everything into trying to turn it around.

“I kept on all existing staff – including the cleaner who had worked for two previous landlords – and retained the lunchtime team for as long as possible.

“When I could no longer afford to keep that role, I offered evening shifts instead, which were declined.

“I made every effort to support the local community: I donated beer and vouchers for village events, hosted monthly charity quiz nights with free food and drink for the organiser, even though he didn’t support the pub outside of this event and I regularly paid a local band to play.

“As a result of the closure, I am now in substantial debt and need to recover my investment in order to secure a home for my family”

“We ran live music nights, locals’ discounts, weekend breakfasts, curry nights, steak deals and more to generate interest.”

But despite these efforts she says the level of support “simply wasn’t enough”.

Rising energy bills, staff wages and the National Insurance hike have also made the situation unsustainable.

“As a result of the closure, I am now in substantial debt and need to recover my investment in order to secure a home for my family,” Victoria added.

“Unfortunately an offer received by the community was unacceptable.

“Plans are being submitted for a smaller, more manageable pub as part of a wider development. If there is genuine interest from the community, they are of course welcome to put forward an offer.

“With over seven pubs closing every week in the UK, it would be a shame for this one to be lost too – but I also have to do what’s right for my family’s future.”

 

>p class="small">From the https://www.kentonline.co.uk By Cara Simmonds, 3 November 2025.

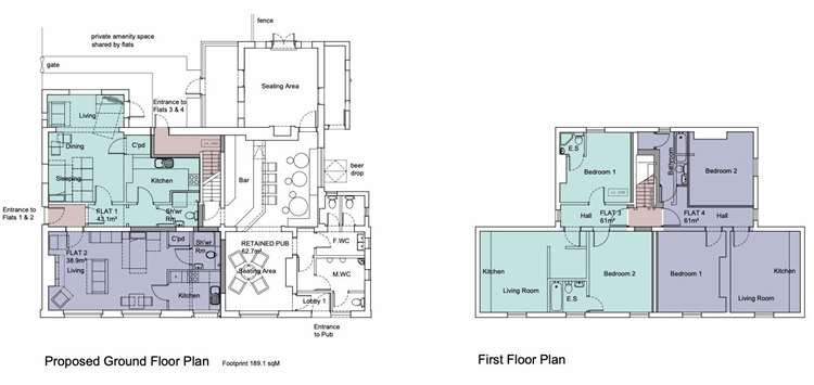
Planning application submitted to turn part of The Black Horse pub in Stansted into apartments.

Campaigners have hit out at plans to reopen a shrunken version of their village pub.

Locals have been campaigning to save The Black Horse in Stansted since it closed last year, and even looked into buying it to run it themselves.

But the owners say they’re struggling to make the business work, and have proposed turning part of the building into apartments to secure its future.

However, villagers feel the scheme means the pub has been set up to fail.

The venue, in Tumblefield Road, dates back to the 18th Century and was once owned by the Fremlin family, who went on to found the famous brewery in Maidstone.

It has been a feature of the village for more than 150 years.

At one stage, it had B&B rooms on the second floor, as well as a manager’s annexe. On the ground floor was a small restaurant that seated around 30 to 40 covers.

Last November, Stansted Parish Council held a public meeting and was seeking volunteers who would be willing to save the establishment.

Since then, a group of residents have met monthly to discuss what steps they should take.

A campaign was launched in July, with dozens of signs and banners put up across Stansted and the surrounding area – aiming to send a clear message to any potential developers.

Speaking to KentOnline at the time, Anna Epps and Tom Sheldon, who are part of Stansted and Fairseat Community Group (SFCG), wanted to engage with the owners and acquire the building at market value. However, this has been unsuccessful.

The pub itself lies within a conservation area and is now an Asset of Community Value (ACV) - a designation which was secured in January and means community groups get a window to prepare a bid if the owner decides to sell.

Plans for the two-acre site have now been sent to Tonbridge and Malling council to be considered.

The owners, Danny Jarvis and Victoria Collier, are asking for a change of use of part of the public house to form two one-bedroom and two two-bedroom apartments with 13 parking spaces.

In the design and access statement, they say that the economic and social changes in the last few years have “severely affected” the viability of pubs in rural areas.

“People visit a wider range of leisure facilities as opposed to the traditional ‘local’ and pubs themselves are now far more reliant on food and other offerings than traditional alcoholic beverages,” the planning documents state.

Black Horse plans 2025

New plans have been submitted to turn part of it into apartments. Picture: DAC architects/TMBC.

“This has moved trade away from many rural pubs to locations which are more easily accessible by motor vehicles.

“The Black Horse is very much ‘off the beaten track’ and has struggled commercially for many years.”

Tom, a retired charter surveyor, says The Black Horse is the “last one standing” in the area.

Four other drinking spots in the vicinity - the "Vigo Inn," "Horse and Groom," "Anchor and Hope" and the "Green Man" - have also shut down.

However, Victoria believes that her plan will help retain part of the pub and allow it to reopen for the community.

Stansted map 2025

Several pubs nearby have been lost over the years.

To see more planning applications and other public notices for your area, click here.

She insisted: “My only aim since closing The Black Horse is to recover my investment and losses, but always with the intention of retaining a smaller, more manageable pub.

“The only way I can see to achieve this aim is by some form of residential development, as the pub alone will definitely not realise the value required.”

It would be open Tuesday to Friday, from 12pm to 9pm, Saturday from 12pm to 11pm and Sundays from 12pm to 3pm.

Sketches of the proposed layout show that the public house would become a taproom.

It would share the ground floor with two apartments, and have a small bar, seating area, toilets and a sectioned-off outside space

The group of villagers claim that in reducing the pub’s size, facilities and opening hours, it would make it “commercially unviable and likely to fail”.

Anna said: “The design appears intentionally set up for the pub to not succeed.

“Regardless of any noise, the positioning of proposed residential units next to the public bar is highly likely to lead to conflict.”

Anna also says that removing the food service would prevent the opportunity to entice visiting tourists, passing walkers and cyclists, as well as those from nearby wedding venue, The Black Barn and sports enthusiasts at the London Golf Club.

It is understood that the parish council will be publishing a detailed response with an independent heritage and viability assessment.

Residents have until Wednesday, November 5, to submit their own comments via 25/01596/PA on the planning portal.

 

LICENSEE LIST

LOCK William 1841 (identified with no occupation age 60 in 1841Census)

FREMLIN James 1849-51+ (also farmer age 42 in 1851Census)

SKUDDER Thomas 1858+ (also shopkeeper)

SKUDDER Mary W Miss 1871-81+ (also grocer age 38 in 1881Census)

HILLS Joseph 1903+ Kelly's 1903

NORTON James 1913+

SANDERS Frank John 1922+

WOODROW Arthur 1938+

GLADWISH Arthur H 1939+ (age 50 in 1939)

TUCKER Cyril & Mollie 1958-77

https://pubwiki.co.uk/BlackHorse.shtml

 

Kelly's 1903From the Kelly's Directory 1903

CensusCensus

 

If anyone should have any further information, or indeed any pictures or photographs of the above licensed premises, please email:-

TOP Valid CSS Valid XTHML